HUDSON SQUARE OFFICE SHARE.
304 Hudson St, New York, NY 10013, USA
Description
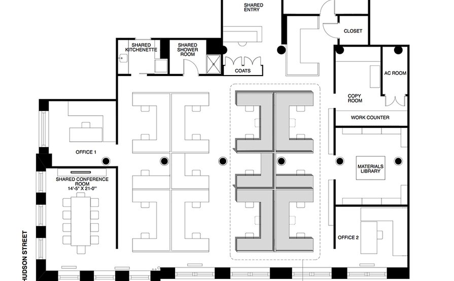
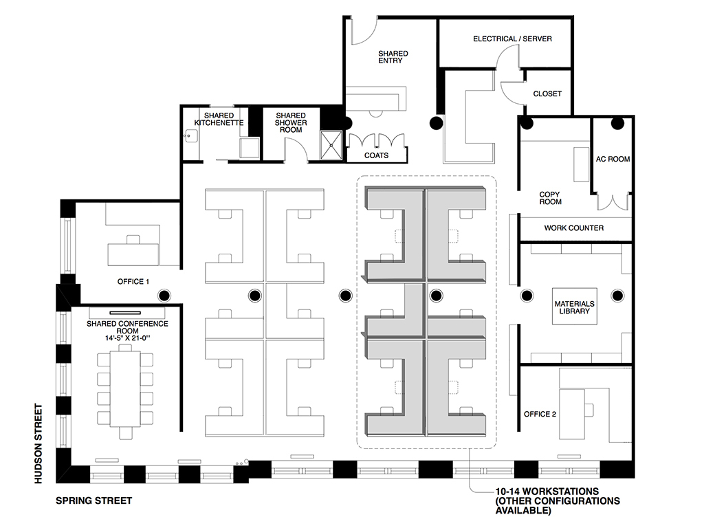
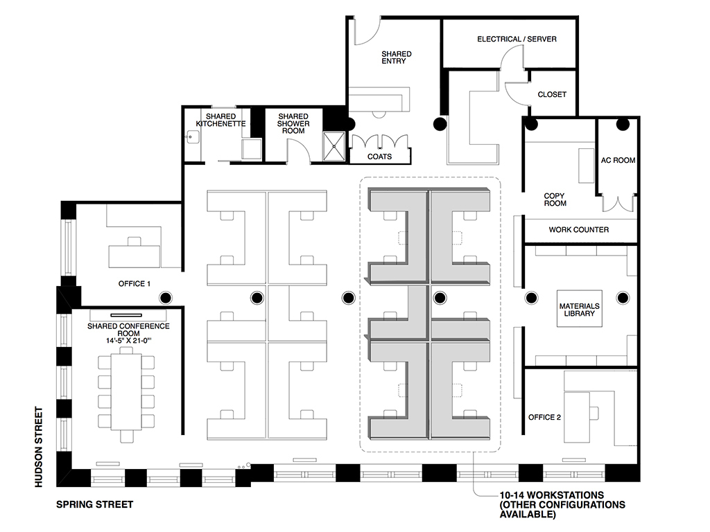
We are a small architecture firm in a sunlit, open studio/office in a prime location at the corner of Hudson and Spring Streets. We are looking for another firm to share our 3,700-SF space.
We have up to 14 seats available in generous custom wood workstations. Chairs, filing cabinets and shelf storage are included. There is a shared reception area with coat closet, full kitchenette, and a large bright corner conference room that comfortably seats ten and has a large flat-screen for presentations and working sessions. Our Office Manager will greet your visitors and receive deliveries. Additionally, there is a shower room, great for those who bike to work or exercise during the day. The space is air-conditioned. 24/7 office access with a 24/7 attended lobby. Near A, C, E and 1 trains.
Rent is dependent on your space requirements.
Managed by
Hudson Square Office
