Olathe CoWorking
1707 E 123rd Terrace, Olathe, KS 66061, USA
Description
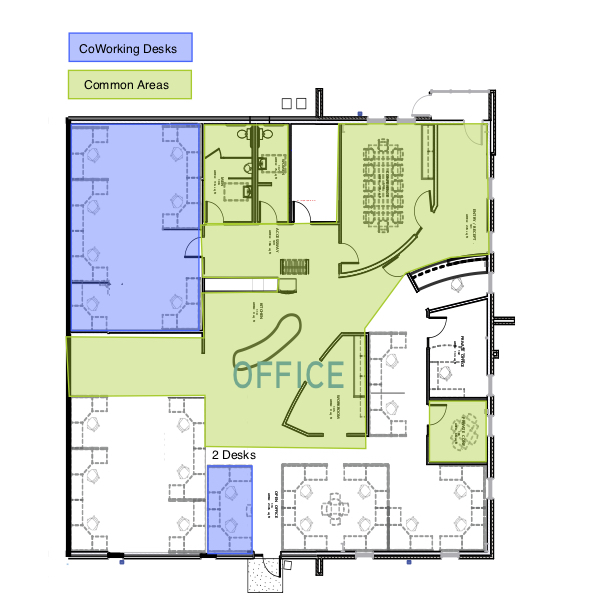
Cost-effective, all-inclusive Olathe coworking office space. Desks for 1-9 people. Options for warehouse and outdoor storage too! One month lease or as long as a 12 month term.
Managed by
Treadwell
