811 SE Stark St, Portland, OR 97214, USA
Description
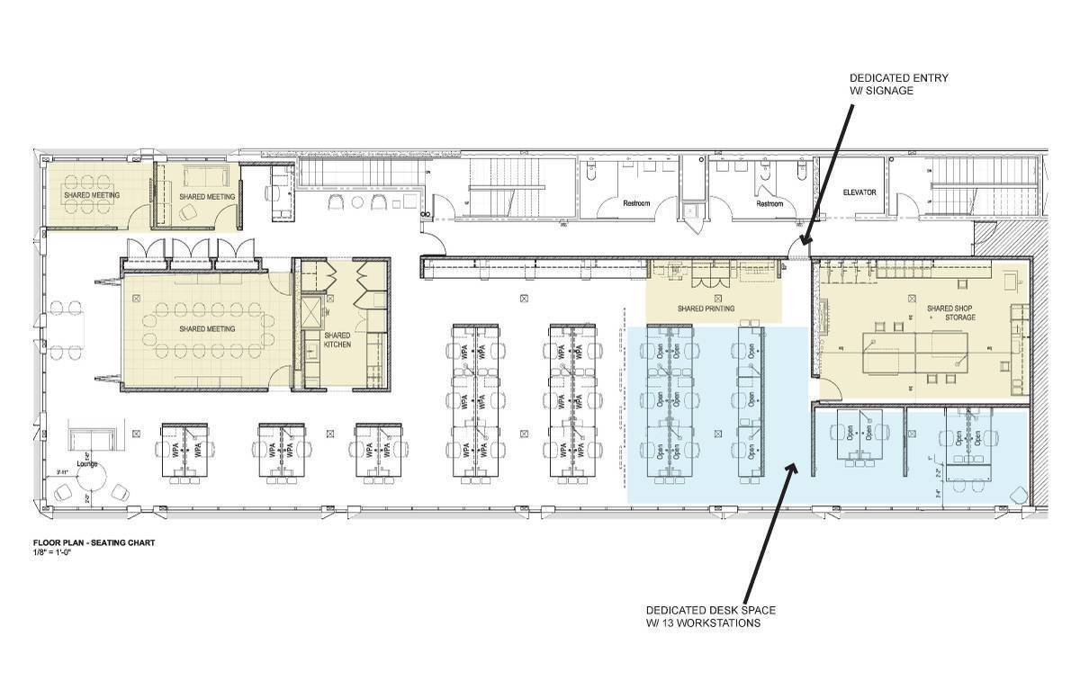
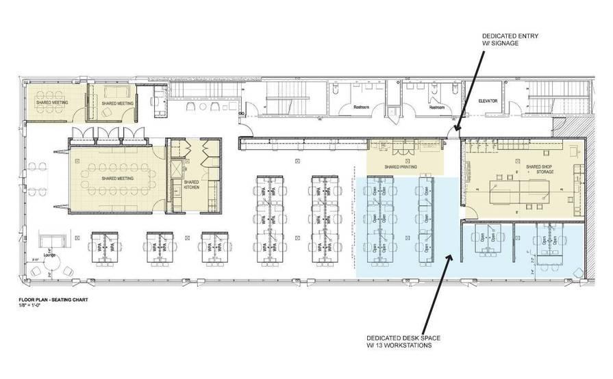
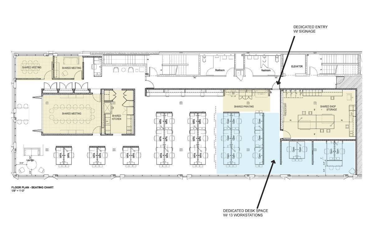
Semi-private creative office / desk space in heavy timber central eastside workspace building.
Up to 13 workstations available for rent with access to shared meeting rooms, kitchenette, shop and storage. Access to printing and copying with low per print charges.
Desks are included with power and access to wifi. Possible network access for larger group or single company rental.
Building includes roof deck and bike room with showers and locker storage.
$500/ desk or all 13 stations for $5000/month.
Managed by
Works Progress Architecture
